

炎炎夏日,我们第一个想到的是什么?
苏打?冰镇西瓜?钓鱼捞面条?蝉鸣?莲花?蒲扇?
我想到了向日葵。
在这个世界上,有一种向日葵是最昂贵的,它就是梵高的名画《向日葵》。
世界顶级名画《向日葵》是荷兰画家梵高创作的一系列“以瓶中向日葵为主要内容”的油画。作品描绘了插在花瓶中的 3、5、12 和 15 朵向日葵。
这些油画原作收藏于德国慕尼黑新美术馆、英国伦敦国家美术馆、日本东京兴安美术馆、荷兰阿姆斯特丹梵高博物馆、以及美国费城艺术博物馆。
通过这一系列作品,梵高向世人表达了他对生命的理解,展示了他独特的精神世界:
用感恩的心对待家人,
善待他人,
对朋友要诚实,
真诚对待工作,
用感恩的心对待生活,
以一颗欣赏的心欣赏艺术,
就像盛开在你面前的向日葵一样。
这世界上,有一种向日葵是最美的,它就在郑州。
请参阅下面的实际照片。



▲郑州华侨城实景
透过这些盛开的向日葵,你是否感受到了生命的力量和夏日的灿烂?
这些向日葵是在郑州的。
郑州华侨城公园内。

关于郑州华侨城,过去一段时间已经多次介绍过【东哥探盘】平台。
2019年5月,我以《2019郑州封面头条:欢迎来到郑州华侨城奇幻精彩新世界》为名,带头报道。

如今,两年过去了,郑州华侨城片区发生了翻天覆地的变化。
郑州华侨城由华侨城集团投资开发。位于郑州西南部的二七新区,郑密路以南、西四环以东、绕城高速以北、金水河源头两侧,总面积约5平方公里。
总体规划上,郑州华侨城以开放式城市公园为核心,集文化、旅游、娱乐、休闲、人文居住等生活方式于一体。规划有“三带、五园、九中心”,以全新第四代“城”、“会客室”风格,着力打造华侨城集团在郑州的大型文旅项目。

▲郑州华侨城总体规划鸟瞰图
其规模巨大,商业丰富。
郑州华侨城由国际一线大师团队全面规划。利用主城约7500亩文化旅游用地,打造金水河畔三带、五园、九中心——打造水上运动运动带、滨水休闲漫步带、滨江绿化景观带。 ;规划“先锋创意”城市公园、“欢乐海岸”体验园、卢村河遗产生态文化园、“海上丝绸之路”文化园、生态修复示范园等5个园区,共计53个快乐节点。

▲ 欢乐海岸体验园效果图
高楼拔地而起。
近两年来,郑州华侨城由北向南逐步开发,实现了南四环以北、金水河以西地区的早期开发建设。

▲ 郑州华侨城北区鸟瞰图
约28万平方米的郑州华侨城创业创意城市园一期已亮相,婚庆广场、爵士音乐酒吧等节点创新正在进行;文化艺术中心、芦村河遗产生态文化园等文化旅游项目同步建设,城市之美逐渐显现。
快来享受吧:
目前建成的游客服务中心已成为区域建筑地标:


已建成的街角公园:

已经搭建好的婚礼草坪:


已建成的爵士酒吧:

卢村河遗址生态文化园也在建设中:



下图为卢村河遗址生态文化园未来规划场景:

▲芦村河遗址生态文化园规划效果图
建设中的文化艺术中心:

这是文化艺术中心的效果图:

先锋创意城市公园儿童音乐区也在建设中:

这是先锋创意城市公园儿童音乐区效果图:

总之,整体规划场景正在慢慢从效果图走向现实。
未来会更好。

如果把郑州华侨城理解为一个文化旅游项目,它是属于郑州人民、属于河南人民的。
如果我们把郑州华侨城理解为一座房地产,那么它的美丽只属于它的业主。
从地产角度来看,郑州华侨城不仅仅属于二七新区地产,就像临乌托邦不仅仅属于绿博集团地产一样。
郑州华侨城是全市性房地产开发项目。
全市性的房地产项目是指其影响力是全市性的,其客群是全市性的,其文化意义和标杆意义是全市性的。
从这个意义上来说,深圳华侨城、武汉华侨城、北京华侨城等都做到了,郑州华侨城正在做。
其特点是:
越来越多的人关注郑州华侨城,越来越多的人成为郑州华侨城的拥有者,越来越多的人传播郑州华侨城的口碑。
从楼盘来看,郑州华侨城卖得很好。
2019年起,郑州华侨城共向市场推出4组产品:
一号院容积率2.49,6栋平房+5栋高层,共959户。
二号院容积率为1.99,6栋东方风格洋房+6栋小高层,共620户。
三号院容积率1.99,7栋平房+5栋小高层,共547户。
5号院容积率2.49,高层6栋+小高层5栋,共1024户。
近两年来,郑州华侨城已销售房屋2000多套,已有2000多个家庭成为郑州华侨城的业主。
结果令人印象深刻。
绝对的区域销售冠军。

截至目前,
郑州华侨城一号院高层产品已全部售罄,部分平房产品仍在销售。
2号庭院所有产品均已售罄。

▲ 郑州华侨城一号院建设实景
目前郑州华侨城在售的产品主要为三号院和五号院。

如上图所示,三号院的位置确实很好。
西侧规划教育用地,未来学校就在家门口;
南面是市政枢纽公园 (Municipal Nexus Park) 一览无余的景色;
东面可以一览公园和金水河的景色。
前面提到的先锋创意城市公园儿童音乐区就位于这里。
三号院产品为137+143平米精装修小高层、143平米洋房。
全部交付精装本。
目的是改善客户群。

▲ 郑州华侨城三号院规划效果图
对了,他家标准层精装修平房目前售价是18500元/平方米。
价格贵,贵是有原因的。
看看这个无敌户型:

看看这个无敌装饰:

▲ 郑州华侨城三号院洋房样板房实拍

这个产品绝对是郑州南城的第一改进产品。
相比之下,
五号院定位为刚需改造组团,毛坯交付。
五号院的位置也很好。
北面是市政枢纽公园 (Municipal Nexus Park) 一览无余的景色;
南边是欢乐海岸体验园。
这里,未来将是年轻人最喜爱的购物娱乐目的地,也是未来都市网红的打卡地。

▲郑州华侨城五号院规划效果图
五号院提供三种家居产品:
1、95平米三房两厅一卫;
2、三房两厅两卫105平米;
3、三房两厅两卫120平米。
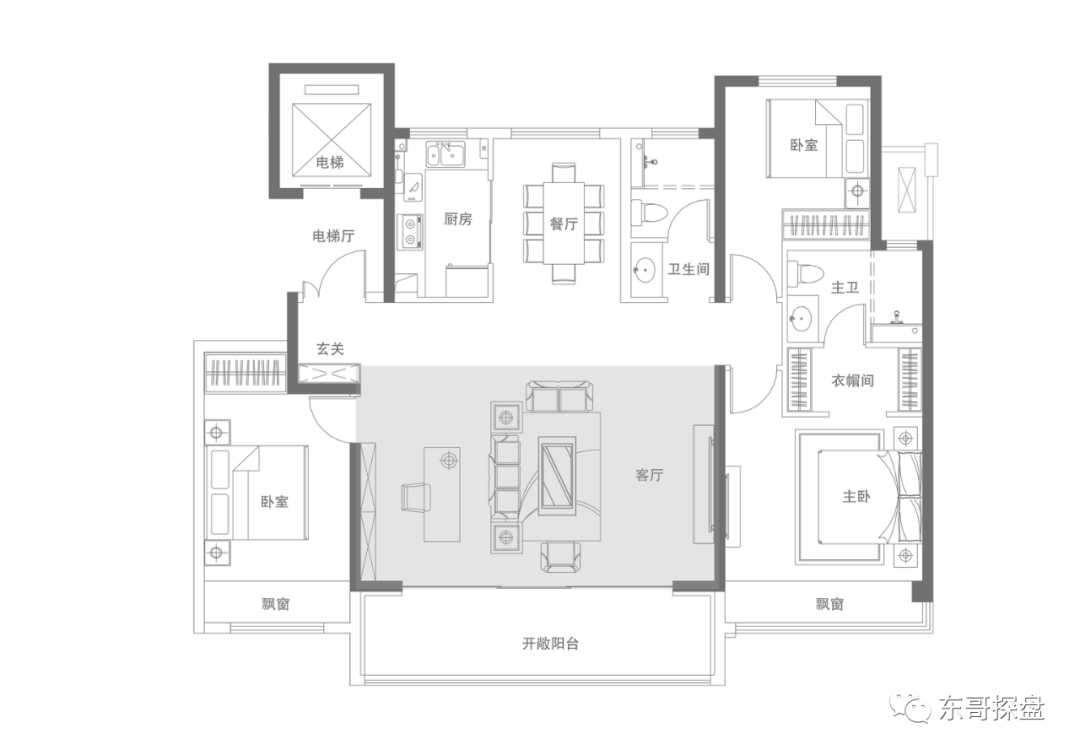
顺便说一句,120平米的三房两厅两卫的户型确实不错。
南北通透,面阔而进深短,有四开间,坐北朝南。
布局是无与伦比的。

从下图中的整体楼层布局可以看出,该产品的布局是两楼梯两户。

一切事物都有外部和内部。
房地产有外部和内部。
看完产品,我们终于明白为什么郑州华侨城如此受购房者欢迎了。
该产品确实是新的。


我们为什么要买房子?
为了更好的生活。
房子不是用来向别人炫耀的,而是供自己使用的。
就像生活一样。
人活着是为了自己,而不是为了向别人证明。
我们买的房子本质上并不是房子,而是房子所依附的土地、社区资源、城市资源所提供的一种生活方式。
在我看来,郑州华侨城的房子最大的价值和意义不仅在于低容积率、装配式建筑、高品质的精装修、各组团的经典户型,还有公园、设施、郑州华侨城整体提供的学校、企业。
这种价值在我最喜欢的深圳华侨城区域体现得淋漓尽致。

▲深圳华侨城实景
社区之美在于景观、建筑、自然,更在于人!
热爱生活的人是美丽社会最美丽的灵魂。
当我看到郑州华侨城向日葵盛开的景象时,我立刻想到了梵高和他的《向日葵》。
梵高本质上是一位热爱生活的人。 《向日葵》代表了他对生命活力的理解。

▲ 梵高的自画像
然后,我想到了“笑起来像花一样”这个词。
笑起来像花一样,是一种多么美好、阳光的生活状态。
代表着生机、活力、幸福。

幸福应该像鲜花一样!
愿郑州华侨城全体业主今后的生活幸福如花!
评论:
本文部分图片和信息来源于网络,仅供参考。
所有楼盘最终信息以开发商公告为准;
内容及观点仅供粉丝购房时参考,以个人需求为准。
如果你喜欢这篇文章,
扫描【东哥小秘书】二维码,
加入【东哥探盘】粉丝团大家庭。
版权声明:本文内容由互联网用户自发贡献,该文观点仅代表作者本人。本站仅提供信息存储空间服务,不拥有所有权,不承担相关法律责任。如发现本站有涉嫌抄袭侵权/违法违规的内容, 请联系本站,一经查实,本站将立刻删除。如若转载,请注明出处:http://zsthbd.com/html/tiyuwenda/8428.html
